Новини по нашому
2 342 Переглядів
0 Рейтинг
Колишня синагога і сквер Крупки – які зміни чекають на історичну частину Ужгорода (Фото)
липня
04
/ 2021
Цього тижня після тривалої перерви в Ужгороді знову провели засідання консультативної ради з питань охорони культурної спадщини при Закарпатській ОДА – консультативного органу, якому на розгляд подають проєкти реконструкцій і реставрацій будівель в історичних ареалах населених пунктів області. Цього разу усі подані проєкти стосувалися лише Ужгорода. То що найближчим часом може змінитися в історичній частині міста – читайте в ексклюзиві «Про Заходу».
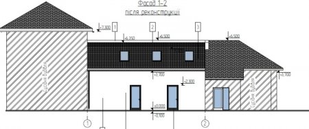
Без сумніву, наймасштабнішим серед поданих був цього разу проєкт капітального ремонту фасадів адміністративної будівлі на площі Жупанатській, 17. Багато хто пам’ятає її, як приміщення аптекоуправління, інші знають, що історично це була синагога неологів, не забулися громадою ще й скандали навколо того, як обласна рада продала будівлю, що була тоді у списку щойно виявлених об’єктів культурної спадщини (з цього списку її вилучили у 2012-му, перед приватизацією). Як би там не було, довгий час споруда колишньої синагоги стояла пусткою і руйнувалася.
За цей час нові власники не раз зверталися до консультативної ради з питань охорони культурної спадщини з проєктами реконструкції будівлі, однак кожного разу їх відхиляли. Нарешті рекомендації фахівців були взяті до уваги, власники замовили розробку проєкту, який не руйнує, а відновлює автентику старовинної споруди, зведеної ще у 1873 році.
Синагога неологів, фото – з історичної довідки проєкту (фрагмент фото Рудольфа Гульки з фондів Слов’янської бібліотеки, 1921 рік)
Використовуючи відомості з детальної історичної довідки, підготовленої дослідниками архітектури Ужгорода Ліною Дегтярьовою та Олегом Олашиним, львівський архітектор Віталій Могитич розробив проєкт ремонту фасаду з відновленням втрачених елементів. Проєкт вийшов амбітним і передбачає серйозні роботи, починаючи від даху, завершуючи заміною пластикових вікон на склопакети в дерев’яній обв’язці, демонтажем плитки з фасаду, відновленням закладених дверних прорізів, втрачених фронтонів та ліпних архітектурних декорів. Завдяки тому, що на даху знову з’являться сигнатурки (невеличкі башточки), буде відновлена колишня форма фронтону між ними, а замість вікна по центру відновлять вітраж, будівля дуже зміниться, виглядатиме майже так само монументально і урочисто, як колись. Членам консультативної ради запропонований до розгляду проєкт сподобався і був ними підтриманий, хоча й озвучувалися деякі технічні зауваження, прийняті проєктантом. Яким буде призначення будівлі після ремонту фасаду – невідомо, як і те, скільки можуть тривати роботи.
Куди тривалішим було обговорення проєкту капітального ремонту скверу Франтішека Крупки по вулиці Гойди (йдеться про сквер позаду будівлі ОДА). Цей сквер є частиною історичного ареалу міста, до того ж – об’єктом природно-заповідного фонду, тому ремонті роботи там також потребують узгодження. Замовник робіт – Ужгородська міська рада – пропонує трохи змінити розташування пішохідних доріжок, відремонтувати і відчистити паркан, частково видалити зелені насадження з подальшою їх заміною, встановити нові лавиці, ліхтарі та смітники. Члени консультативної ради висловилися категорично проти запропонованого вигляду ліхтарів, оскільки вони імітують стиль ХІХ століття, тоді як сквер у Малому Ґалаґові заклали значно пізніше, відповідно і стиль має бути іншим. Щодо видалення 23-х дерев, то, як пояснили представники міської ради, видаляти планують лише ті дерева, які мають значний кут нахилу або вже підсохли. Замість них планують висадити екземпляри мамонтового дерева, тюльпанового дерева, ліванського кедру тощо. Натомість члени консультативної ради запропонували не озеленювати сквер на свій розсуд, а звернутися за розробкою ландшафтного плану до фахівця.
Також занепокоєння членів ради викликали наміри демонтувати автентичні кам’яні сходи і замінити їх на бетонні з гранітною плиткою. У процесі обговорення виявилося, що ці плани вже неактуальні – кам’яні брили сходів, які трохи роз’їхалися, хочуть відновити. Та найдовше на засіданні обговорювали покриття пішохідних доріжок. Представники міської ради розповіли, що розглядали варіант спеціального паркового гравійного покриття, але не знайшли фірми, яка в Україні якісно працює з цим матеріалом. Тому в якості покриття пропонують гранітну колоту бруківку розміром 50х50х50 мм. Однак члени консультативної ради висловили сумніви, що таке покриття буде зручним для прогулянок, пересування візочків, катання на роликах тощо. Тому запропонували розглянути варіант звичайного асфальтування доріжок, тим більше, що саме цей тип покриття був передбачений там історично, ще під час проєктування скверу. Усі ці рекомендації розробники проєкту мають взяти до уваги, внести зміни і повторно представити його на засіданні консультативної ради з питань охорони культурної спадщини.
Ремонт фасаду чекає незабаром на ще одну будівлю в центрі міста – житловий будинок на пл.Корятовича, 7. Відремонтувати фасад будівлі, яка нині перебуває в дуже поганому стані, мають намір власники квартир і магазинів, які працюють на першому поверсі.
Загалом проєкт здався членам консультативної ради непоганим, однак їм не вистачало хоча би мінімальних досліджень того, якими були автентичні кольори фасаду. Незрозуміла і ситуація з першим поверхом, де автентично стіни були оздоблені в техніці «штучний камінь». Члени ради висловили сподівання, що під час демонтажу пластикового покриття частини фасаду знайдеться непошкоджена ділянка, орієнтуючись на яку можна буде відновити й іншу, зафарбовану, частину фасаду. Також архітектора попросили представити обміри декоративних елементів фасаду, аби під час ремонтних робіт не змінили ані їхнього розміру, ані місця розташування. Замість пластикових центральних дверей проєктом передбачено відновити ворота. Та оскільки не вдалося знати, як вони виглядали колись, архітектор запропонував встановити металеві ворота з рисунком, що повторював би вигляд балконної огорожі. Зникнуть за проєктом і величезний дашок, який закриває нині весь тротуар, і пластикове оздоблення фасаду з величезною вивіскою, і кондиціонери зі стін. Після доопрацювання проєкт знову розглядатиметься радою.
Куди важча ситуація – з паспортом опорядження фасадів та капітальним ремонтом покрівлі будинку на вул. Гошовського, 6. Будівля, в якій у 1930-х працювала благодійна «Руська народна кухня», нині розділена між кількома власниками, котрі не можуть дійти згоди щодо загального вигляду споруди. Найбільші проблеми – у жителів двох квартир на верхньому поверсі, адже там протікає дах, руйнуючи помешкання.
За представленим проєктом дах відремонтують з частковою заміною кроквяної системи, покривши керамічною черепицею. Однак у документації не були представлені детальні обміри, які могли довести, що у конфігурацію даху не вносяться зміни. Тому проєкт відправили на доопрацювання, попросивши архітектора врахувати і ще кілька деталей: збереження автентичного вікна-«термометра», флагштоків та відновлення оригінальних водоприймачів.
Також на засіданні ради відмовили у погодженні проєкту реконструкції квартири з надбудовою по вулиці Духновича, 9. Там ідеться про частину будинку у дворі, яку не буде видно з вулиці Духновича. Однак члени ради виявили багато помилок у документації, до того ж виявилося, що будівлю вже почали надбудовувати, не дочекавшись дозволів.
А от інший схожий проєкт, реконструкцію квартири з надбудовою у дворі на пл. Петефі, 9, на засіданні погодили. Щодо цього проєкту серйозних зауважень у членів ради не було.
Без сумніву, наймасштабнішим серед поданих був цього разу проєкт капітального ремонту фасадів адміністративної будівлі на площі Жупанатській, 17. Багато хто пам’ятає її, як приміщення аптекоуправління, інші знають, що історично це була синагога неологів, не забулися громадою ще й скандали навколо того, як обласна рада продала будівлю, що була тоді у списку щойно виявлених об’єктів культурної спадщини (з цього списку її вилучили у 2012-му, перед приватизацією). Як би там не було, довгий час споруда колишньої синагоги стояла пусткою і руйнувалася.
За цей час нові власники не раз зверталися до консультативної ради з питань охорони культурної спадщини з проєктами реконструкції будівлі, однак кожного разу їх відхиляли. Нарешті рекомендації фахівців були взяті до уваги, власники замовили розробку проєкту, який не руйнує, а відновлює автентику старовинної споруди, зведеної ще у 1873 році.
Синагога неологів, фото – з історичної довідки проєкту (фрагмент фото Рудольфа Гульки з фондів Слов’янської бібліотеки, 1921 рік)
Використовуючи відомості з детальної історичної довідки, підготовленої дослідниками архітектури Ужгорода Ліною Дегтярьовою та Олегом Олашиним, львівський архітектор Віталій Могитич розробив проєкт ремонту фасаду з відновленням втрачених елементів. Проєкт вийшов амбітним і передбачає серйозні роботи, починаючи від даху, завершуючи заміною пластикових вікон на склопакети в дерев’яній обв’язці, демонтажем плитки з фасаду, відновленням закладених дверних прорізів, втрачених фронтонів та ліпних архітектурних декорів. Завдяки тому, що на даху знову з’являться сигнатурки (невеличкі башточки), буде відновлена колишня форма фронтону між ними, а замість вікна по центру відновлять вітраж, будівля дуже зміниться, виглядатиме майже так само монументально і урочисто, як колись. Членам консультативної ради запропонований до розгляду проєкт сподобався і був ними підтриманий, хоча й озвучувалися деякі технічні зауваження, прийняті проєктантом. Яким буде призначення будівлі після ремонту фасаду – невідомо, як і те, скільки можуть тривати роботи.
Куди тривалішим було обговорення проєкту капітального ремонту скверу Франтішека Крупки по вулиці Гойди (йдеться про сквер позаду будівлі ОДА). Цей сквер є частиною історичного ареалу міста, до того ж – об’єктом природно-заповідного фонду, тому ремонті роботи там також потребують узгодження. Замовник робіт – Ужгородська міська рада – пропонує трохи змінити розташування пішохідних доріжок, відремонтувати і відчистити паркан, частково видалити зелені насадження з подальшою їх заміною, встановити нові лавиці, ліхтарі та смітники. Члени консультативної ради висловилися категорично проти запропонованого вигляду ліхтарів, оскільки вони імітують стиль ХІХ століття, тоді як сквер у Малому Ґалаґові заклали значно пізніше, відповідно і стиль має бути іншим. Щодо видалення 23-х дерев, то, як пояснили представники міської ради, видаляти планують лише ті дерева, які мають значний кут нахилу або вже підсохли. Замість них планують висадити екземпляри мамонтового дерева, тюльпанового дерева, ліванського кедру тощо. Натомість члени консультативної ради запропонували не озеленювати сквер на свій розсуд, а звернутися за розробкою ландшафтного плану до фахівця.
Також занепокоєння членів ради викликали наміри демонтувати автентичні кам’яні сходи і замінити їх на бетонні з гранітною плиткою. У процесі обговорення виявилося, що ці плани вже неактуальні – кам’яні брили сходів, які трохи роз’їхалися, хочуть відновити. Та найдовше на засіданні обговорювали покриття пішохідних доріжок. Представники міської ради розповіли, що розглядали варіант спеціального паркового гравійного покриття, але не знайшли фірми, яка в Україні якісно працює з цим матеріалом. Тому в якості покриття пропонують гранітну колоту бруківку розміром 50х50х50 мм. Однак члени консультативної ради висловили сумніви, що таке покриття буде зручним для прогулянок, пересування візочків, катання на роликах тощо. Тому запропонували розглянути варіант звичайного асфальтування доріжок, тим більше, що саме цей тип покриття був передбачений там історично, ще під час проєктування скверу. Усі ці рекомендації розробники проєкту мають взяти до уваги, внести зміни і повторно представити його на засіданні консультативної ради з питань охорони культурної спадщини.
Ремонт фасаду чекає незабаром на ще одну будівлю в центрі міста – житловий будинок на пл.Корятовича, 7. Відремонтувати фасад будівлі, яка нині перебуває в дуже поганому стані, мають намір власники квартир і магазинів, які працюють на першому поверсі.
Загалом проєкт здався членам консультативної ради непоганим, однак їм не вистачало хоча би мінімальних досліджень того, якими були автентичні кольори фасаду. Незрозуміла і ситуація з першим поверхом, де автентично стіни були оздоблені в техніці «штучний камінь». Члени ради висловили сподівання, що під час демонтажу пластикового покриття частини фасаду знайдеться непошкоджена ділянка, орієнтуючись на яку можна буде відновити й іншу, зафарбовану, частину фасаду. Також архітектора попросили представити обміри декоративних елементів фасаду, аби під час ремонтних робіт не змінили ані їхнього розміру, ані місця розташування. Замість пластикових центральних дверей проєктом передбачено відновити ворота. Та оскільки не вдалося знати, як вони виглядали колись, архітектор запропонував встановити металеві ворота з рисунком, що повторював би вигляд балконної огорожі. Зникнуть за проєктом і величезний дашок, який закриває нині весь тротуар, і пластикове оздоблення фасаду з величезною вивіскою, і кондиціонери зі стін. Після доопрацювання проєкт знову розглядатиметься радою.
Куди важча ситуація – з паспортом опорядження фасадів та капітальним ремонтом покрівлі будинку на вул. Гошовського, 6. Будівля, в якій у 1930-х працювала благодійна «Руська народна кухня», нині розділена між кількома власниками, котрі не можуть дійти згоди щодо загального вигляду споруди. Найбільші проблеми – у жителів двох квартир на верхньому поверсі, адже там протікає дах, руйнуючи помешкання.
За представленим проєктом дах відремонтують з частковою заміною кроквяної системи, покривши керамічною черепицею. Однак у документації не були представлені детальні обміри, які могли довести, що у конфігурацію даху не вносяться зміни. Тому проєкт відправили на доопрацювання, попросивши архітектора врахувати і ще кілька деталей: збереження автентичного вікна-«термометра», флагштоків та відновлення оригінальних водоприймачів.
Також на засіданні ради відмовили у погодженні проєкту реконструкції квартири з надбудовою по вулиці Духновича, 9. Там ідеться про частину будинку у дворі, яку не буде видно з вулиці Духновича. Однак члени ради виявили багато помилок у документації, до того ж виявилося, що будівлю вже почали надбудовувати, не дочекавшись дозволів.
А от інший схожий проєкт, реконструкцію квартири з надбудовою у дворі на пл. Петефі, 9, на засіданні погодили. Щодо цього проєкту серйозних зауважень у членів ради не було.
Категорія : Новини по нашому
